About the Property
Prime Travis Heights location across the street from Stacy Park, this home offers unbeatable access to green space, trails and Big Stacy Pool. A perfect urban, lock-and-leave, low maintenance home for active, outdoor-loving city dwellers.
This home offers privacy and an abundance of indoor-outdoor living with multiple patio areas, a 2nd floor balcony and fully gated and fenced-in front and back yards. A peaceful fountain in the front courtyard overlooking the park is the perfect place to have coffee and catch the morning sunrise.
The concrete-walled front courtyard is professionally landscaped including a water feature and secure steel-gated entry. In 2025, the backyard was redesigned with limestone pavers, fencing, metal raised planters, automated drip irrigation, and sail shades.
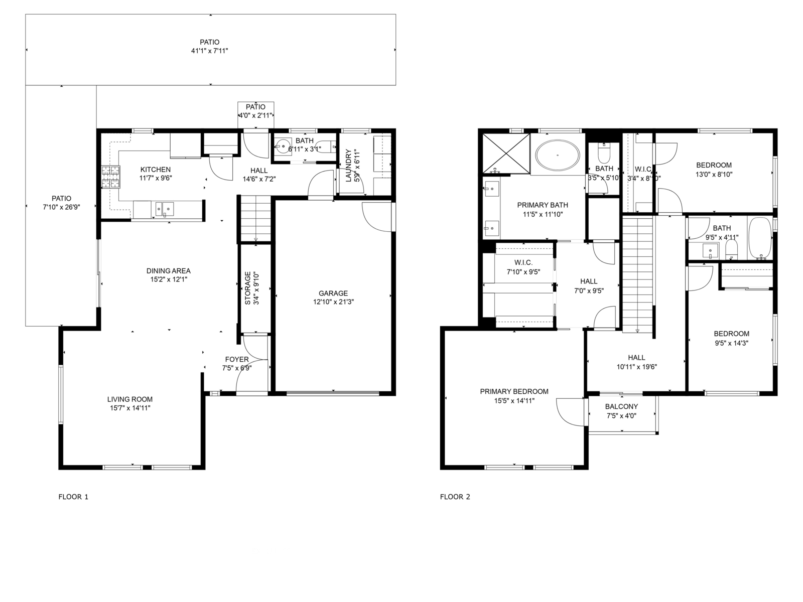
Inside the home an open-concept living area on the main level is filled with natural light, featuring high ceilings, large picture windows, and easy access to the side and rear patios. The kitchen and primary bath were updated in recent years, blending clean design with functional upgrades. Upstairs, the expansive primary suite offers high ceilings, treetop and park views, a generous walk-in closet, and a spa-like bath. Two additional bedrooms with cork flooring share a stylish full bath. A private balcony overlooks the front courtyard and the park.
Notable upgrades include all solid core birch doors, replacement of many windows, a new tankless water heater (2025), updated air conditioner coil (2022), and newer dishwasher and refrigerator. A large sail shade with steel supports provides covered parking in the driveway, in addition to a one-car garage and two parking spaces.
This home delivers the best of Travis Heights living with privacy, style, and a location that’s second to none.