Endless Opportunities in Seguin | Kuper Sotheby's International Realty
Active
$275,000

410 Rodeo Drive

Seguin, TX 78155

About the Property

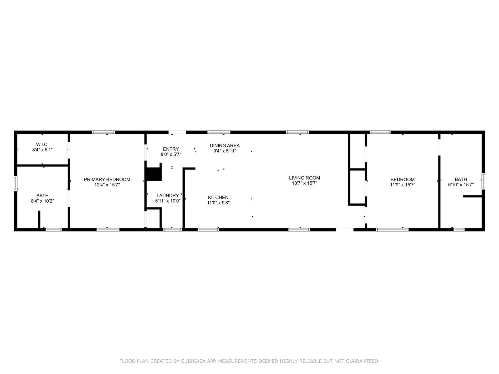
Welcome to 410 Rodeo Drive, Seguin, TX 78155 your own slice of Texas in Seguin—a spacious 2-bedroom, 2-bath manufactured home on 3.77 acres of open land, offering comfort, versatility, and room to grow. This 1,216 sq ft home features a bright, functional layout with a metal roof for durability and Masonite siding that adds timeless charm. Whether you're looking for a peaceful homestead, a weekend retreat, or a property with potential, this home fits the bill. Generous wood deck, perfect for ...
2 Bedrooms
2 Bathrooms
1,216 sqftHome Size
3.77 acreLot Size
  • Home Type: Mobile/Manufactured Bedrooms: 3 Covered Parking: 2-Car Carport Structure: Single Story Roof: Durable Metal Roof Foundation: Concrete Block Exterior: Masonite Siding Bathrooms: 2 Full Baths Living Space: 1
  • 216 sq ft Lot Size: 3.77 Acres Year Built: 1992 Expansive Wood Deck – perfect for relaxing or entertaining Workshop for hobbies or extra storage Room to roam on 3.77 acres
410 Rodeo Drive
Seguin, TX 78155
Presented By
agent headshot
Leslie Reyes Idais
Title
GRI, ABR, MRP
Company
Kuper Sotheby's International Realty
Phone
210-548-6929
Email
leslie.idais@sothebysrealty.com
License #
711536
Get in touch
Send Inquiry
Loading...
..